Property
Beds
4
Full Baths
3
1/2 Baths
None
Year Built
2026
Sq.Footage
N/A
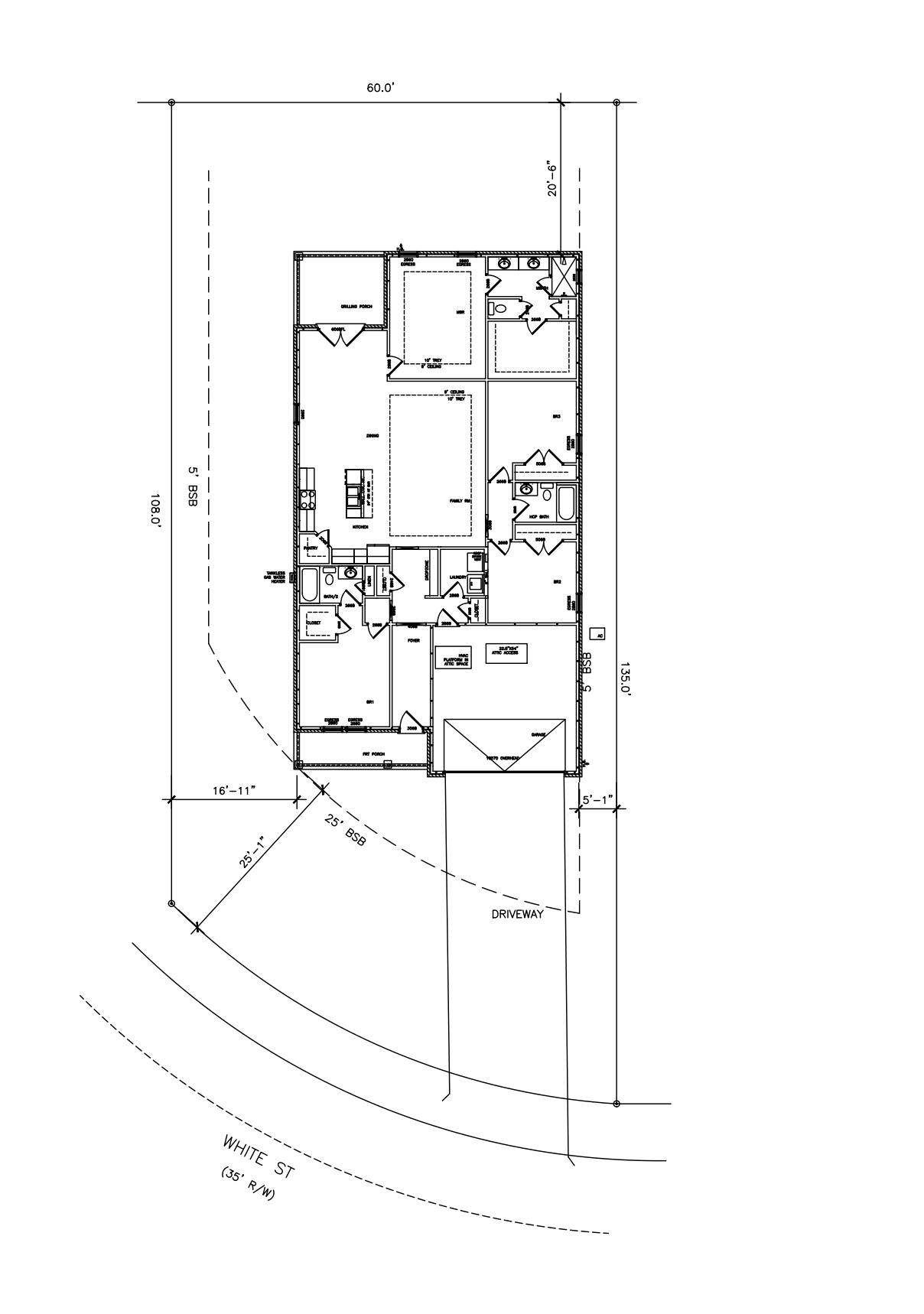
This one checks all the boxes... a fantastic local builder, a popular open floor plan, a central location, and ready by the middle of June!! Get in early and take advantage of serious incentives. The builder is covering doc stamps, title, and the final survey, plus contributing 2% toward buyer closing costs. The home itself delivers where it matters. It offers 4 bedrooms and 3 full baths with a clean, functional layout designed for everyday living and entertaining. The open concept living area flows into a well-equipped kitchen featuring quartz countertops, stainless steel appliances, soft-close cabinetry, a stylish backsplash, and durable luxury vinyl plank flooring throughout the main spaces. The primary suite includes a tiled shower for a more polished, upgraded feel, while a standout feature of the home is the front bedroom with its own private en suite, ideal for guests, multigenerational living, or a private office. Additional upgrades include a fenced backyard, window blinds with buyer-selected options from available selections, and a refrigerator included with the home. Property is currently under construction, giving you the opportunity to secure it before completion.
Features & Amenities
Interior
-
Other Interior Features
Breakfast Bar, Tray Ceiling(s), Recessed Lighting, Pantry
-
Total Bedrooms
4
-
Bathrooms
3
-
Cooling YN
YES
-
Cooling
Central Air, Ceiling Fan(s), Electric
-
Heating YN
YES
-
Heating
Natural Gas
-
Pet friendly
N/A
Exterior
-
Garage
Yes
-
Garage spaces
2
-
Construction Materials
Brick
-
Parking
Garage Door Opener
-
Patio and Porch Features
Patio, Covered
-
Pool
No
Area & Lot
-
Lot Features
Interior Lot, Level
-
Lot Size(acres)
0.18
-
Property Type
Residential
-
Property Sub Type
Single Family Residence
-
Architectural Style
Contemporary
Price
-
Sales Price
$579,900
-
Zoning
Resid Single Family
-
Sq. Footage
N/A
-
Price/SqFt
N/A
HOA
-
Association
No
School District
-
Elementary School
Plew
-
Middle School
Ruckel
-
High School
Niceville
Property Features
-
New Construction
NO
-
Foundation Details
Slab
-
Sewer
Public Sewer
-
Water Source
Public
Schedule a Showing
Showing scheduled successfully.
Mortgage calculator
Estimate your monthly mortgage payment, including the principal and interest, property taxes, and HOA. Adjust the values to generate a more accurate rate.
Your payment
Principal and Interest:
$
Property taxes:
$
HOA fees:
$
Total loan payment:
$
Total interest amount:
$
Location
County
Okaloosa
Elementary School
Plew
Middle School
Ruckel
High School
Niceville
Listing Courtesy of Lisa J Deering , Berkshire Hathaway Home Services PenFed Realty
RealHub Information is provided exclusively for consumers' personal, non-commercial use, and it may not be used for any purpose other than to identify prospective properties consumers may be interested in purchasing. All information deemed reliable but not guaranteed and should be independently verified. All properties are subject to prior sale, change or withdrawal. RealHub website owner shall not be responsible for any typographical errors, misinformation, misprints and shall be held totally harmless.
FOUNDER
Realhub365 Demo
Call Realhub365 today to schedule a private showing.
* Listings on this website come from the FMLS IDX Compilation and may be held by brokerage firms other than the owner of this website. The listing brokerage is identified in any listing details. Information is deemed reliable but is not guaranteed. If you believe any FMLS listing contains material that infringes your copyrighted work please click here to review our DMCA policy and learn how to submit a takedown request.© 2024 FMLS.